Home Builders
Become Design + Build for zero overhead cost
Custom homes, renovations, ADUs, duplexes, townhomes, barndominiums, condos, light commercial, churches, and more

High-Level Client Care
- Flexible timelines to fit project needs
- Matched 1-on-1 with a design professional
- Listen to needs & vision while offering construction budget guidance
- Solidify decisions before construction begins

Designs with Construction Expertise
- Approach projects from a construction background
- Builder-friendly designs to protect margins
- Clean dimensions to reduce material & time waste

Customized Plans
- Tailored to each builders:
- Material preferences
- Construction methods
- Streamlined process to keep you building more

Builders Love our plans
Designs are created with margins in mind
From builders for builders
“Paragon excels in delivering prompt responses and innovative, cost-effective design solutions that align with our clients’ project criteria. Their builder-friendly approach ensures practicality and efficiency, making them a great industry partner.”
Craig S. - The Brookhaven Group
“Paragon Home Plans has proven to be an indispensable asset to our company as they help guide our clients through the home plan design process. They are knowledgeable, professional and skilled at designing plans that fit our preferences and client’s needs. Our partnership has allowed us to design and build with excellence.”
Seth G. - Frank Good Builders
“They brought a deep level of knowledge, creativity, and attention to detail, listened to my ideas and needs, and helped shape them into a design that was not only functional but also beautiful”
Luiz R. - AVL Contractor

CUSTOM HOME DESIGN
Our team has over 10 years of experience building and designing custom homes. Let us take on the time-consuming design work so that you can focus on building.

INTERIOR DESIGN
Beautiful design inside and out. We have partnered with interior designers to help our clients plan out their dream homes.

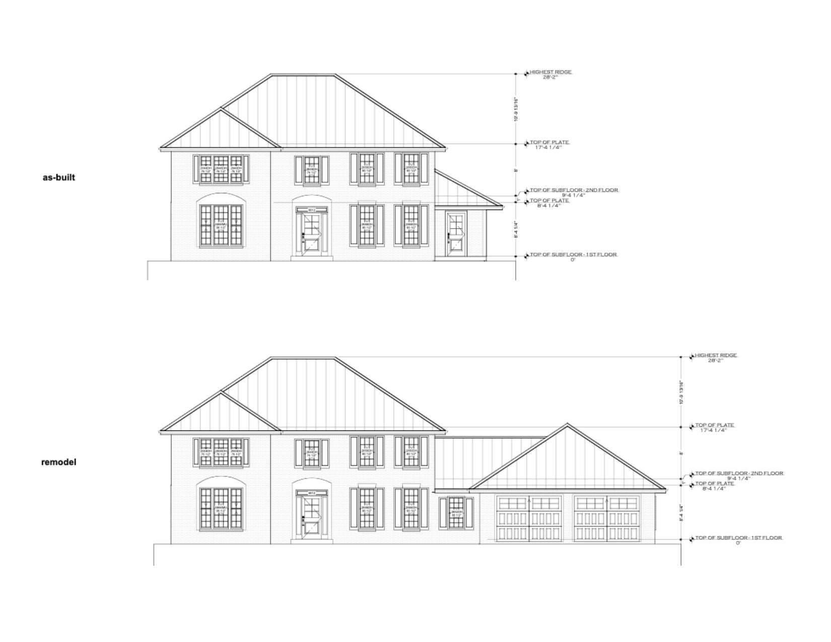
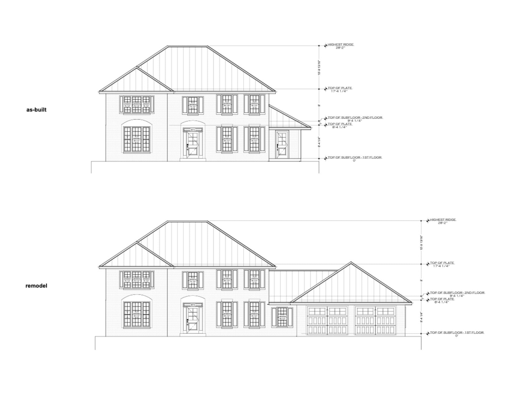
RENOVATION DESIGN
Our design service is not limited to new-construction only. In our renovation design service we walk through the re-design with your client.

3D RENDERINGS
All packages include renderings to help clients see what their home will look like when complete.