




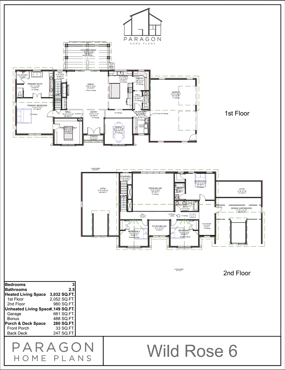
The Wild Rose 6
Plan Code: P-442-019-B
SQUARE FOOTAGE BREAKDOWN
Total Heated Area: 3,032 sq. ft.
First Floor: 2,052 sq. ft.
Second Floor: 980 sq. ft.
BEDS/BATH
Bedrooms: 4
Full Bathrooms: 3
Half Bathrooms: 1
STYLE
Modern Tudor
GARAGE
Type: Attached
Area: 661 sq. ft.
Count: 2
Entry: Side
FOUNDATION TYPE
Standard Foundations: Basement
Optional Foundations: Walkout, Monolithic Slab, Daylight, Crawlspace
ROOF DETAILS
Primary Pitch: 12 on 12
Secondary Pitch: 12 on 12
Framing Type: Stick or Truss
EXTERIOR WALLS
Standard Type(s): 2x4
Optional Type(s): 2x6
DIMENSIONS
Width: 86’
Depth: 47’6”
Max Ridge Height: 36'
CEILING HEIGHTS
First Floor / 10’0”
Second Floor / 9’0”
THIS PLAN CAN BE MODIFIED.
Choose options





The Wild Rose 6
Sale price$1,300.00