




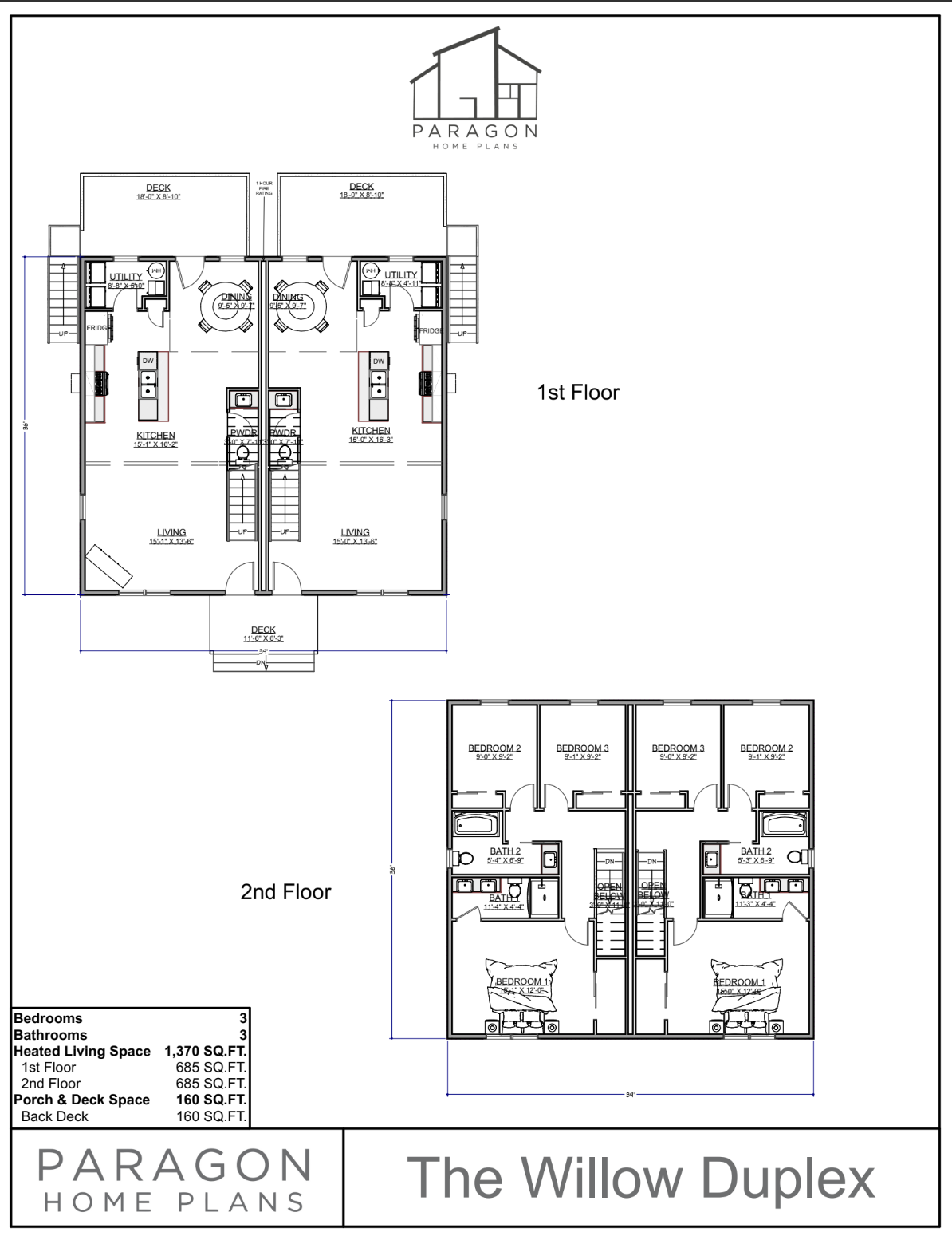
The Willow Duplex
Plan Code: P-330-019-C
SQUARE FOOTAGE BREAKDOWN
Total Heated Area: 1,370 sq. ft.
First Floor: 685 sq. ft.
Second Floor: 685 sq. ft.
BEDS/BATH
Bedrooms: 3
Full Bathrooms: 2
Half Bathrooms: 1
STYLE
Duplex
GARAGE
None
FOUNDATION TYPE
Standard Foundations: Crawlspace
Optional Foundations: Walkout, Monolithic Slab, Daylight, Basement
ROOF DETAILS
Primary Pitch: 4 on 12
Secondary Pitch: 6 on 12
Framing Type: Stick or Truss
EXTERIOR WALLS
Standard Type(s): 2x4
Optional Type(s): 2x6
DIMENSIONS
Width: 39’
Depth: 36’
Max Ridge Height: 25'
CEILING HEIGHTS
First Floor / 9’0”
Second Floor / 8’0”
Lower Level / 9’0”
Second Floor / 8’0”
Lower Level / 9’0”
THIS PLAN CAN BE MODIFIED.
Choose options





The Willow Duplex
Sale price$1,250.00